简体版| 繁体版
无障碍
支持IPv6
当前位置:首页 > 自然工作 > 国土空间规划

防城港市自然资源局关于广西和利房地产开发有限公司“锦和园项目”变更后总平面规划设计方案及建筑立面设计方案的批前公示

2022-06-16 17:59     来源:防城港市自然资源局
分享 微信
头条
微博 空间 qq
【字体: 打印

根据《中华人民共和国城乡规划法》的有关规定,现对广西和利房地产开发有限公司“锦和园项目”变更后总平面规划设计方案及建筑立面设计方案予以批前公示。

一、项目地址:市行政中心区金花茶大道西侧

二、项目概况

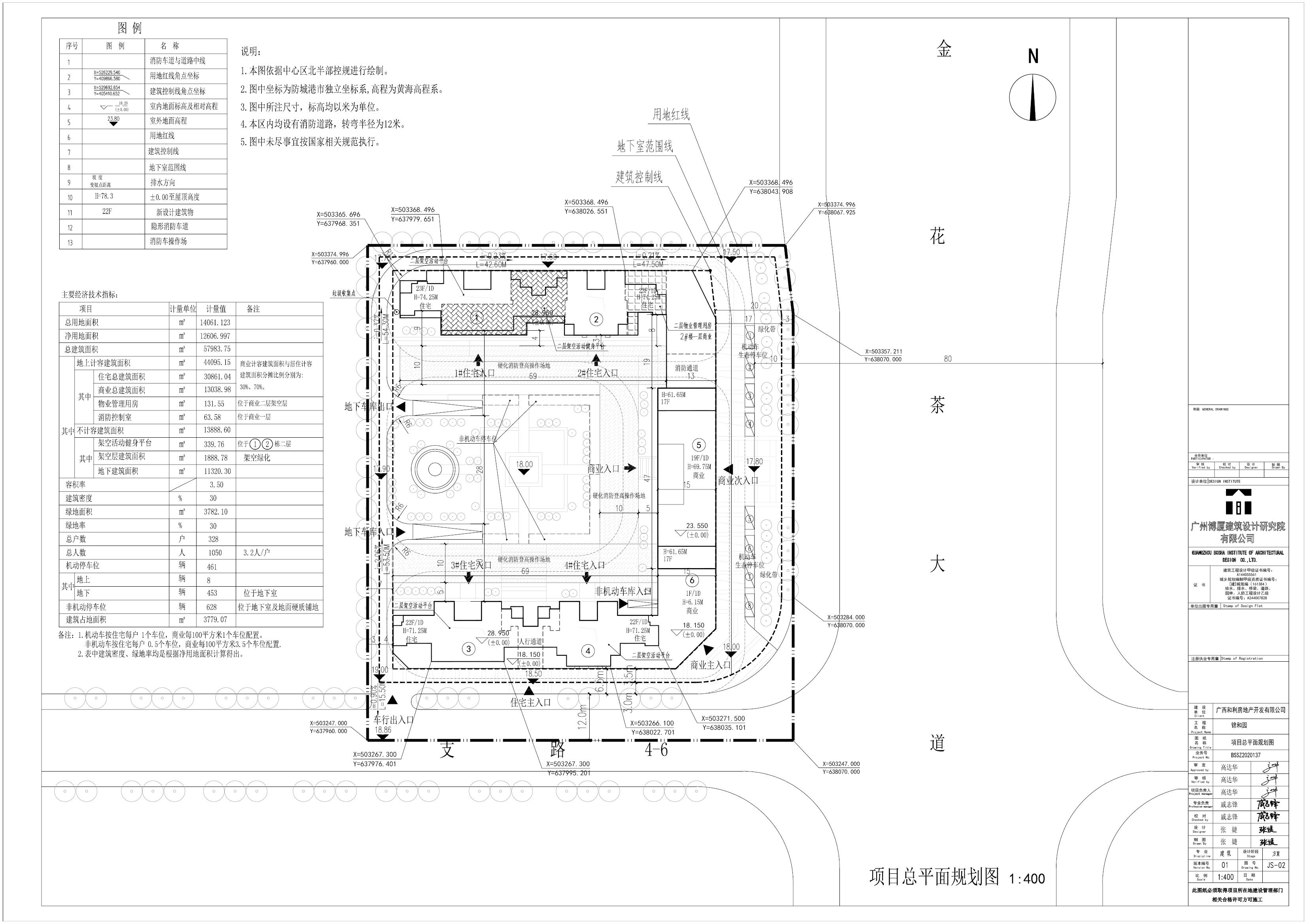
(一)批准规划设计条件(地字第450601201700077):总用地面积14061.123净用地面积12606.997,用地性质为零售商业、居住用地,计容总建筑面积>12606.997㎡且44124.490, 容积率>1.0且≤3.5,建筑密度≤35% ,绿地率≥30% ,建筑高度 :≤80米。

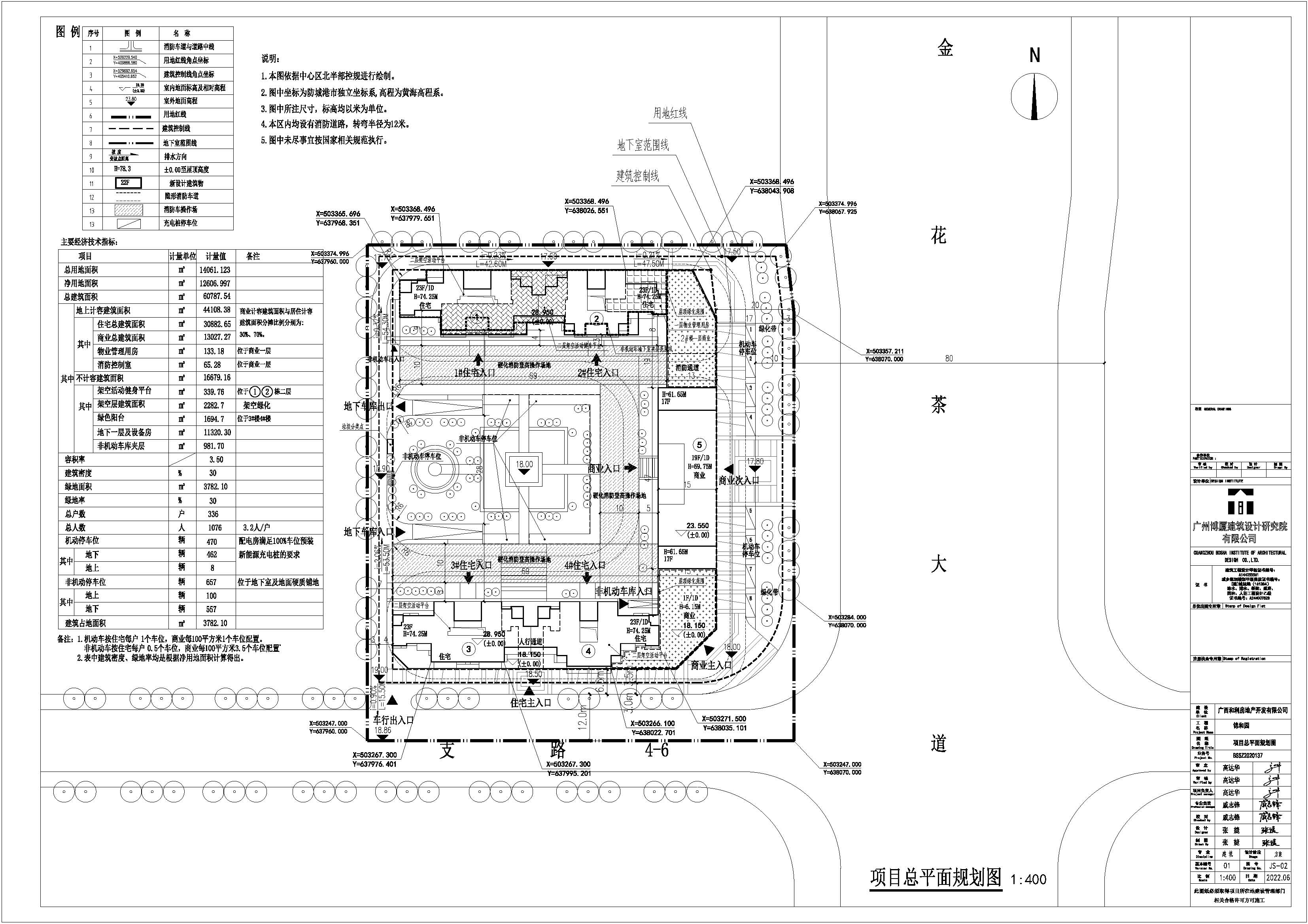
(二)总平面规划设计方案:项目总用地面积14061.123净用地面积12606.997,总建筑面积60787.54,计容面积44108.38(其中住宅30882.65,商业13027.27物业管理用房133.18消防控制室65.28),不计容建筑面积为16679.16(其中架空活动健身平台339.76,架空层建筑面积2282.7㎡,绿色阳台面积1694.7㎡,地下一层及设备房建筑面积11320.30㎡,非机动车库夹层面积981.70),容积率为3.5,建筑密度为30%,绿地率为30%,机动车停车位470个(地面8,地下462个),非机动车位657,规划住宅总户数336户。

(三)主要调整内容:

1.总建筑面积由原来的57983.75调整为60787.54

2.总计容建筑面积由原来的44095.15调整为44108.38,容积率3.5不变。

3.不计容建筑面积由原来的13888.60调整为16679.16㎡。

4.总占地面积由原来的3779.07㎡调整为3782.10㎡,建筑密度30%不变,绿地率30%不变。

5. 机动车停车位由原来的461个调整为470个,住宅户数由原来的328户调整为336户。

6. 项目规划的34号楼南侧增加绿色阳台,绿色阳台面积为1694.7㎡。

(四)建设方案:建筑立面设计方案一。

三、公告地点

(一)《防城港日报》《广西日报》《南国早报》等任何一家覆盖防城港新闻的综合类报纸媒体。

(二)防城港市自然资源局网站: http://fcg.dnr.gxzf.gov.cn/

(三)项目所在地现场:市行政中心区金花茶大道西侧

项目审批涉及的相关利害关系人如有意见,请将书面意见(署真实姓名、身份证号码、联系地址和通讯方式)于公示期(公示期为7日,具体公示时间以登报公示之日起开始计算,项目业主在拿到此函后须尽快进行现场及登报公示)内送达防城港市自然资源局工程规划管理科(联系电话:0770-2820082,防城港市港口区云南路30号天马大厦,邮编:538001)。

     四、本案图示

区位示意图

原审批通过总平面图

总平面图

方案一整体鸟瞰图

方案一人视效果图

方案一人视夜景效果图

防城港市自然资源局

2022616

文件下载:

关联文件: