我要收藏
公共资源调用站点
文章分享
根据《中华人民共和国城乡规划法》的有关规定,现对广西盛隆冶金有限公司“产业升级技改(第二阶段)产能置换”项目总平面规划设计方案变更及炼钢主厂房、1号至3号综合水泵房建筑立面设计方案予以批前公示。
一、项目地址:大西南临港工业园。
二、项目概况
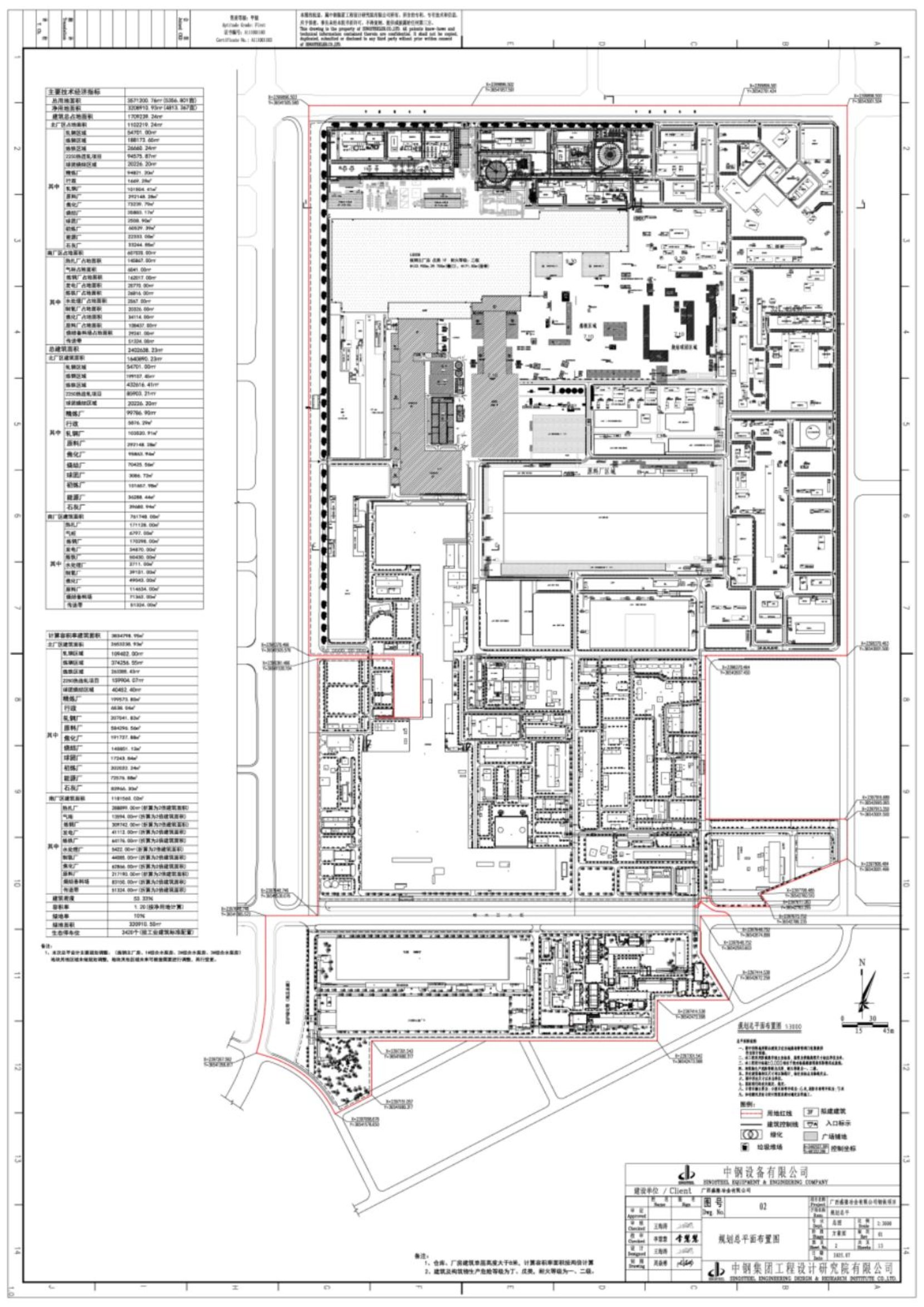
(一) 批准规划设计条件(地字第4506002025YG0064569号):总用地面积3571200.76㎡,净用地面积3208910.93㎡,用地性质为工业、港口码头、公用设施(供地)用地,建设规模:≥1925346.56㎡且≤4813366.40㎡,容积率:≥0.6且≤1.5,建筑密度:≥30%且≤50% ,绿地率:≥10%且≤20%。
(二)建设内容:项目总用地面积3571200.76㎡,净用地面积3208910.93㎡,总建筑面积2411167.42㎡,计容建筑面积3851857.33㎡,容积率为1.20,建筑密度为53.33%,绿地率为10%,停车位2420个。
(三)变更内容:总平面布局变更,拆除炼钢主体厂房一部分以及一部分炉初练炉车间、炉槽下液压站、炉槽设备房、综合水泵房等建构筑物,拆除面积共为177893.14平方米。炼钢主厂房、1号至3号综合水泵房扩建,扩建面积合计197211.45㎡。原批复方案总建筑面积2421751.99㎡,计容建筑面积3424132.08㎡,容积率为1.0,建筑密度为45.50%,绿地率为10%,停车位2000个。
三、公告地点
(一)《防城港日报》《南国早报》《广西日报》等任何一家覆盖防城港新闻的综合类报纸媒体。
(二)防城港市自然资源局网站: http://fcg.dnr.gxzf.gov.cn。
(三)项目所在地现场:大西南临港工业园。
项目审批涉及的相关利害关系人如有意见,请将书面意见(署真实姓名、身份证号码、联系地址和通讯方式)于公示期(公示期为7日,具体公示时间以登报公示之日起开始计算,项目业主在拿到此函后须尽快进行现场及登报公示)内送达防城港市自然资源局工程规划管理科(联系电话:0770-2820082,防城港市港口区云南路30号天马大厦防城港市自然资源局,邮编:538001)。
四、本案图示

区位示意图

原批复的总平面图

变更后的总平面

厂房鸟瞰图

炼钢主体厂房以1号至3号综合水泵房透视图

炼钢厂主体厂房透视图二
防城港市自然资源局
2025年10月13日
文件下载:
关联文件: