我要收藏
公共资源调用站点
文章分享
根据《中华人民共和国城乡规划法》的有关规定,现对防城港市铭邦实业有限公司“废旧金属回收再生资源综合利用”项目总平面规划设计方案及建筑立面设计方案予以变更批前公示。
一、项目地址:港口区大西南临港工业园A区。
二、项目概况
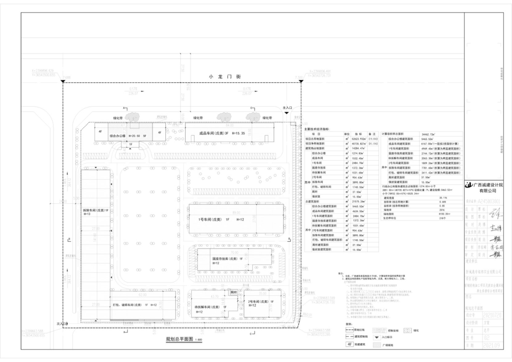
(一) 批准规划设计条件(地字第450600202100093号):总用地面积52623.93㎡,净用地面积:43737.37㎡,用地性质为二类工业用地,建设规模:≤78932.05㎡,容积率:≥0.7且≤1.5,建筑密度:≥35%且≤50% ,绿地率:≤20%,建筑限高 :≤24m。配备车位:按规范设置。
(二)建设内容:总用地面积52623.93㎡,净用地面积:43737.37㎡,总建筑面积24472.89㎡,计容建筑面积32418.50㎡,容积率为0.764,建筑密度为42.0%,绿地率为20%,停车位221个。
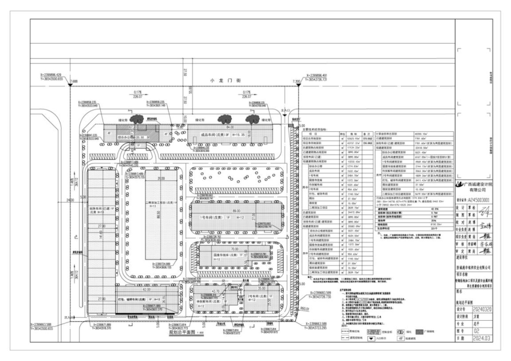
(三)变更内容:总平面布局变更,增加一座二期深加工项目厂房,综合办公楼屋顶增加一个楼梯间。原批复的总平:总建筑面积为21575.26㎡,总计容建筑面积34462.72㎡,容积率(按净用地)为0.85,容积率(按总用地)为0.655,建筑密度为35.1%,绿地率为20%,机动车位:218个。
三、公告地点
(一)《防城港日报》《南国早报》《广西日报》等任何一家覆盖防城港新闻的综合类报纸媒体。
(二)防城港市自然资源局网站: http://fcg.dnr.gxzf.gov.cn。
(三)项目所在地现场:港口区大西南临港工业园A区。
项目审批涉及的相关利害关系人如有意见,请将书面意见(署真实姓名、身份证号码、联系地址和通讯方式)于公示期(公示期为7日,具体公示时间以登报公示之日起开始计算,项目业主在拿到此函后须尽快进行现场及登报公示)内送达防城港市自然资源局工程规划管理科(联系电话:0770-2820075,防城港市港口区云南路30号天马大厦防城港市自然资源局,邮编:538001)。
四、本案图示

区位示意图

原批复的总平面图

变更后的总平面

原批复的鸟瞰图

变更后的鸟瞰图

方案一透视图

方案一透视图2

厂房透视图

二期深加工项目透视图
防城港市自然资源局
2025年10月28日
文件下载:
关联文件: