我要收藏
公共资源调用站点
文章分享
根据《中华人民共和国城乡规划法》的有关规定,现对缪娟祥、林国琨“缪娟祥、林国琨私人住宅”总平面规划设计方案及建筑立面设计方案予以批前公示。
一、项目地址:防城港市港口区公车新城。
二、项目概况
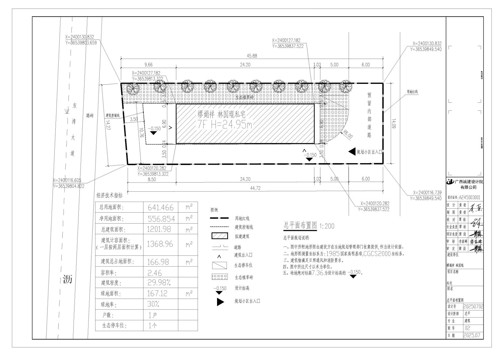
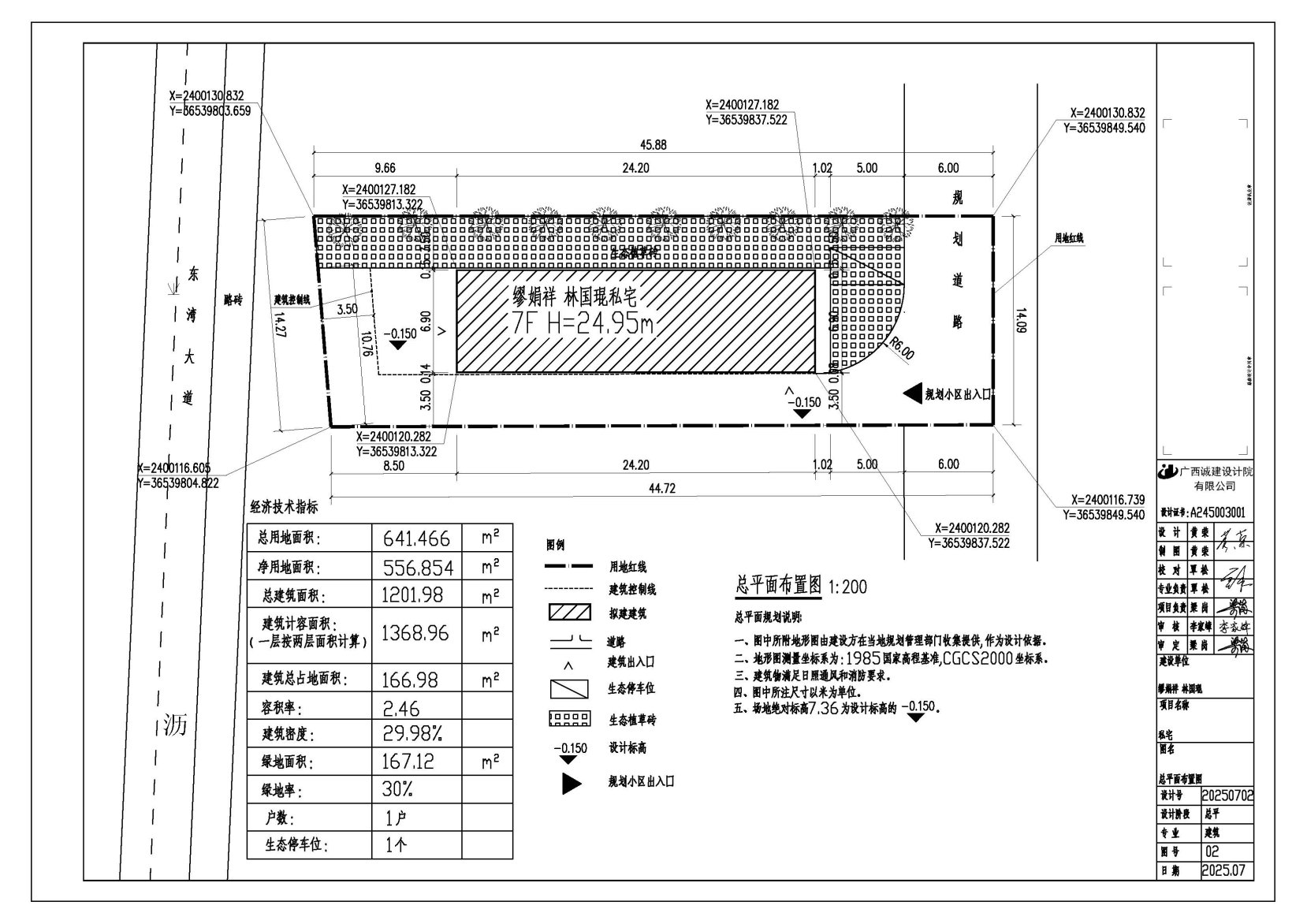
(一) 批准规划设计条件(地字第450602201100295号):地块总用地面积641.466㎡,净用地面积556.854㎡,用地性质为居住用地,建设规模:≤1392.135㎡,容积率:≤2.5,建筑密度:≤30% ,绿地率:≥30%,建筑限高:≤25m,配备车位:1车/户。
(二)建设内容:地块总用地面积为641.466㎡,净用地面积为556.854㎡,总建筑面积为1201.98㎡,总计容建筑面积1368.96㎡,容积率为2.46,建筑密度为29.98%,绿地率:30%,机动车位:1个。
(三)建设方案:建筑立面设计方案一。
三、公告地点
(一)《防城港日报》《南国早报》《广西日报》等任何一家覆盖防城港新闻的综合类报纸媒体。
(二)防城港市自然资源局网站: http://fcg.dnr.gxzf.gov.cn。
(三)项目所在地现场:防城港市港口区公车新城。
项目审批涉及的相关利害关系人如有意见,请将书面意见(署真实姓名、身份证号码、联系地址和通讯方式)于公示期(公示期为7个工作日,具体公示时间以登报公示之日起开始计算,项目业主在拿到此函后须尽快进行现场及登报公示)内送达防城港市自然资源局建设工程规划科(联系电话:0770-2820082,防城港市港口区云南路30号天马大厦防城港市自然资源局,邮编:538001)。
四、本案图示

区位图

总平面图

鸟瞰图

沿街透视图
防城港市自然资源局
2025年11月9日
文件下载:
关联文件: