我要收藏
公共资源调用站点
文章分享
根据《中华人民共和国城乡规划法》的有关规定,现对防城港市城投红树林汽车投资有限责任公司“防城港红树林智慧交通与汽车服务孵化中心项目”总平面规划设计方案及建筑立面设计方案予以批前公示。
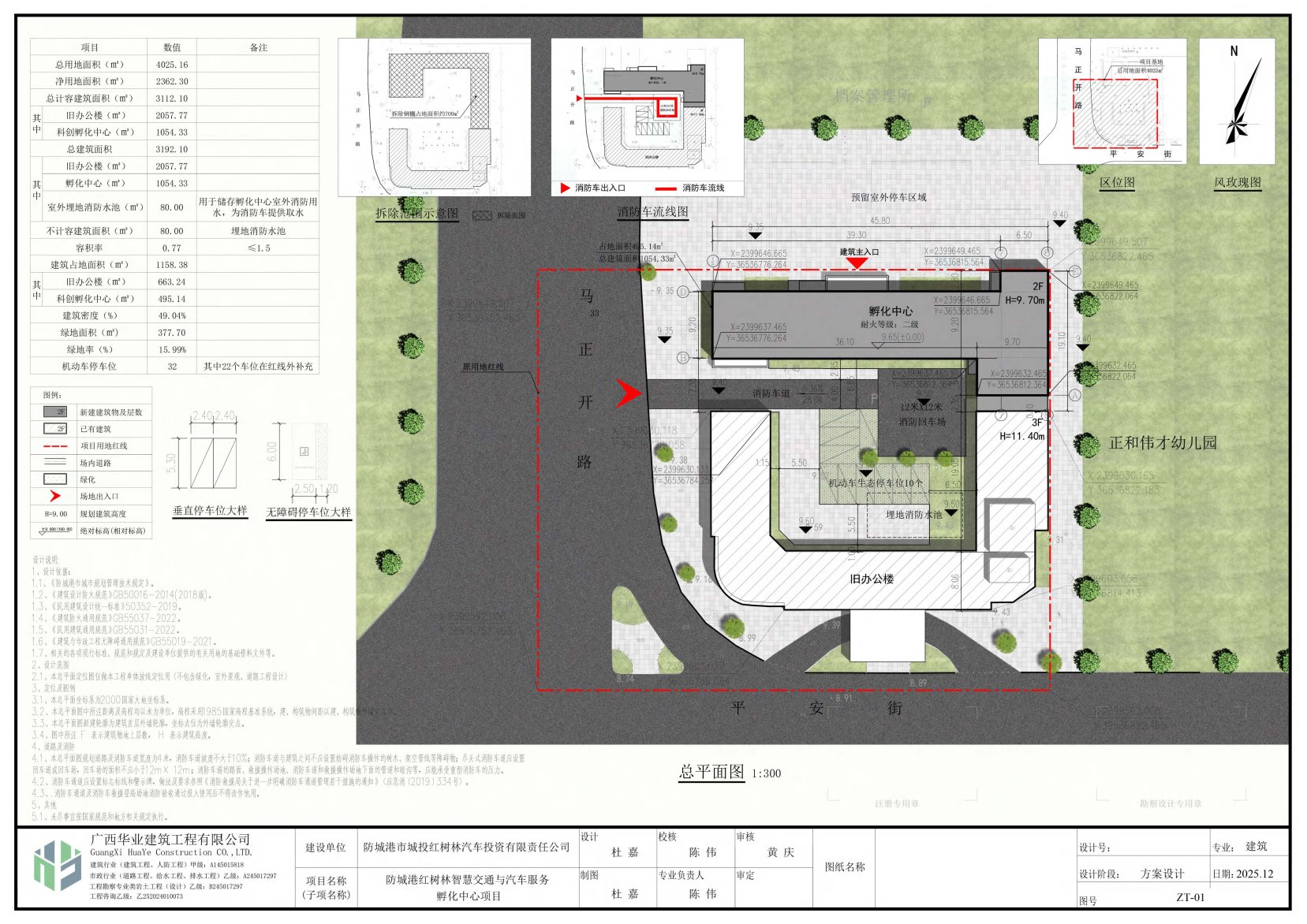
一、项目地址:防城港市港口区马正开路与平安街交汇处。
二、项目概况
(一) 批准规划设计条件:地块总用地面积4025.16㎡,净用地面积2362.30㎡,用地性质为商务金融用地,容积率:≤1.5,建筑密度:≤50% ,绿地率:≤25%。
(二)建设内容:地块总用地面积为4025.16㎡,净用地面积为2362.30㎡,总建筑面积为3192.10㎡,总计容建筑面积:3112.10㎡,容积率:0.77,建筑密度:49.04%,绿地率:15.99%。
(三)建设方案:建筑立面设计方案一。
三、公告地点
(一)《防城港日报》《南国早报》《广西日报》等任何一家覆盖防城港新闻的综合类报纸媒体。
(二)防城港市自然资源局网站: http://fcg.dnr.gxzf.gov.cn。
(三)项目所在地现场:防城港市港口区马正开路与平安街交汇处。
项目审批涉及的相关利害关系人如有意见,请将书面意见(署真实姓名、身份证号码、联系地址和通讯方式)于公示期(公示期为7个工作日,具体公示时间以登报公示之日起开始计算,项目业主在拿到此函后须尽快进行现场及登报公示)内送达防城港市自然资源局建设工程规划科(联系电话:0770-2820082,防城港市港口区云南路30号天马大厦防城港市自然资源局,邮编:538001)。
四、本案图示

区位图

总平面图

鸟瞰图

科创孵化中心透视图
防城港市自然资源局
2025年12月31日
文件下载:
关联文件: