我要收藏
公共资源调用站点
文章分享
根据《中华人民共和国城乡规划法》的有关规定,现对广西汇金新能源有限公司“冶炼铜废渣高值回收制备10万吨/年高性能磷酸铁锂前驱体项目”变更总平面规划设计方案及建筑立面设计方案予以批前公示。
一、项目地址:港口区企沙镇金川工业园区
二、项目概况
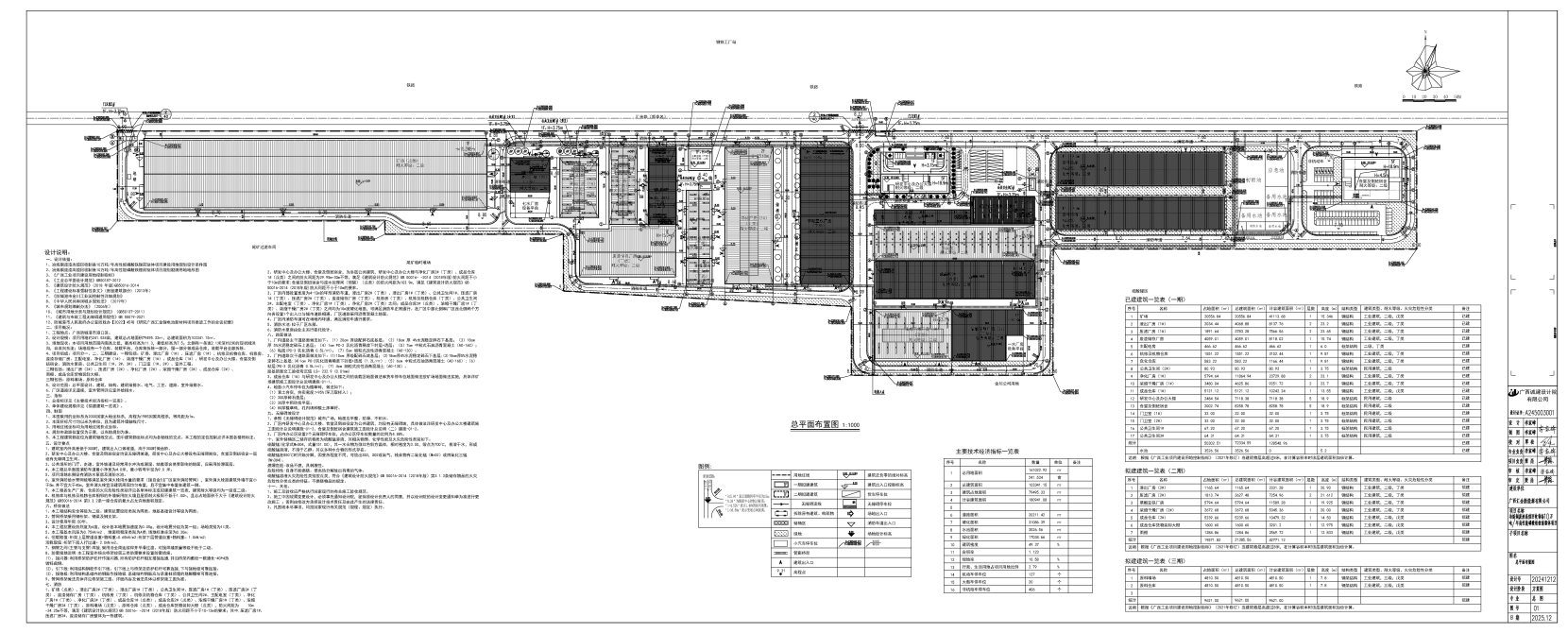
(一) 批准规划设计条件:总用地面积161022.92㎡,净用地面积161022.92㎡,用地性质为工业用地,建设规模:≥177125.21㎡且≤322045.84㎡,容积率:≥1.1且≤2.0,建筑密度:≥40%,建筑限高:≤40m,绿地率:≥10%且≤20%。配备车位:按规范设置。
(二)建设内容:项目总用地面积为161022.92㎡,净用地面积为161022.92㎡,总建筑面积为103341.15㎡,总计容建筑面积180941.08㎡,容积率为1.123,建筑密度为49.37%,机动车位:127个,大型停车位:20个,绿化率:10.58%。
(三)调整内容:本次报建为三期新建,新增一栋原料堆场和一栋原料仓库,其余总平面不变。
(四)建设方案:建筑立面设计方案一。
三、公告地点
(一)《防城港日报》《南国早报》《广西日报》等任何一家覆盖防城港新闻的综合类报纸媒体。
(二)防城港市自然资源局网站: http://fcg.dnr.gxzf.gov.cn。
(三)项目所在地现场:港口区企沙镇金川工业园区。
项目审批涉及的相关利害关系人如有意见,请将书面意见(署真实姓名、身份证号码、联系地址和通讯方式)于公示期(公示期为7个工作日,具体公示时间以登报公示之日起开始计算,项目业主在拿到此函后须尽快进行现场及登报公示)内送达防城港市自然资源局工程规划管理科(联系电话:0770-2820075,防城港市港口区云南路30号天马大厦防城港市自然资源局,邮编:538001)。
四、本案图示

区位图

新总平图

旧总平图

鸟瞰图

原料堆场
防城港市自然资源局
2025年12月30日
文件下载:
关联文件: