我要收藏
公共资源调用站点
文章分享
根据《中华人民共和国城乡规划法》等有关规定,现将广西特种管道制造有限责任公司新型特种钢管智能制造生产基地项目设计方案予以批前公示。
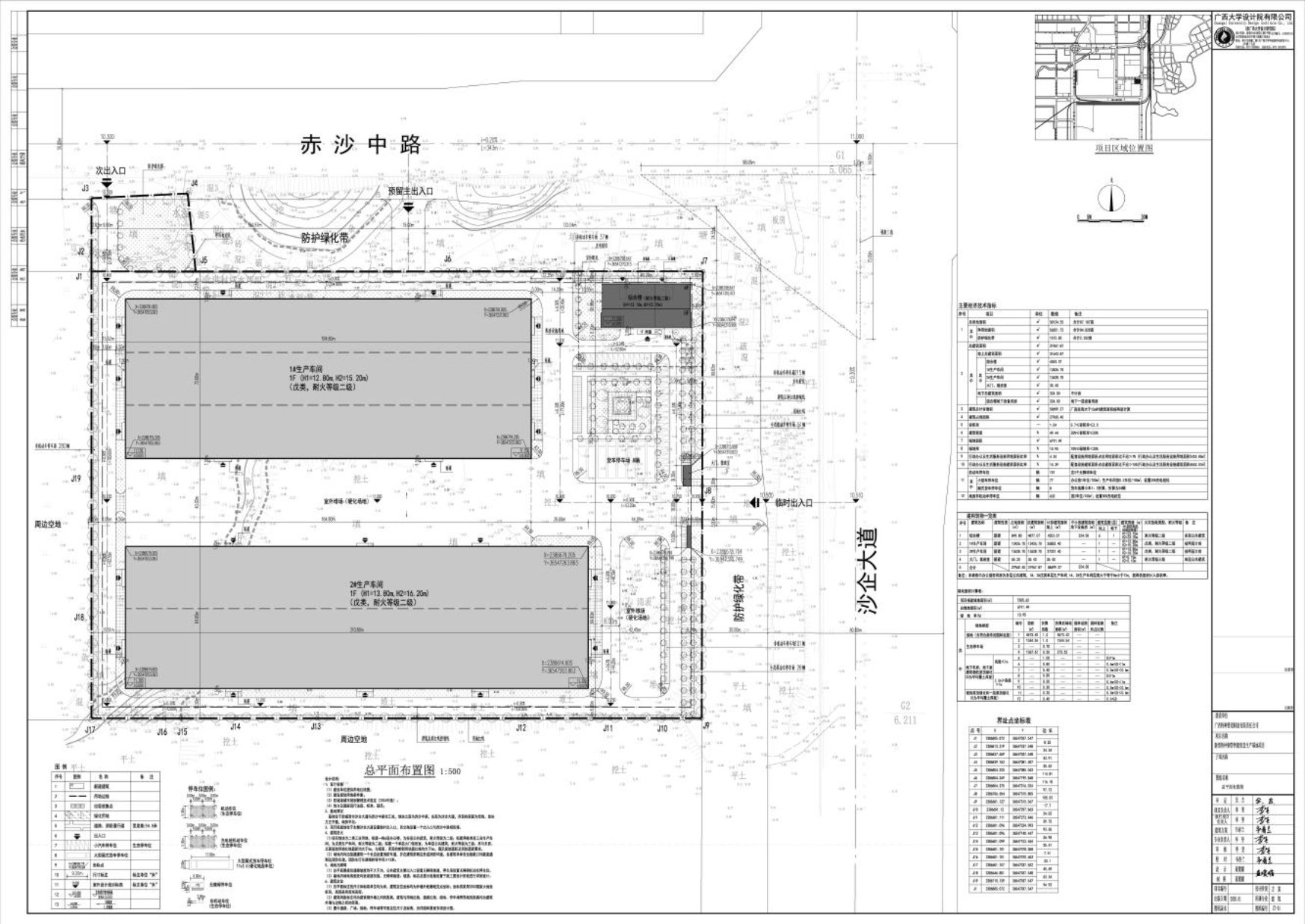
一、项目地址
企沙工业区赤沙中路与沙企大道交汇处。
二、地类(用途)
二类工业用地。
三、项目概况
(一)建设内容:项目总用地面积为58124.55㎡,净用地面积为56551.72㎡,总建筑面积为31967.87㎡(其中新建1#生产车间建筑面积13426.70㎡,2#生产车间建筑面积13628.70㎡,综合楼建筑面积4877.07㎡,大门值班室建筑面积35.40㎡),总计容建筑面积58699.27㎡,容积率为1.04,建筑密度为49.44%,绿地率为10.95%,机动车位:101个。
(二)建设方案:建筑立面设计方案一。
(三)总平面图及设计方案的相关内容详见公示图
四、公示地点
(一)“新型特种钢管智能制造生产基地项目”项目现场。
(二)防城港市自然资源局网站(http://fcg.dnr.gxzf.gov.cn)。
设计方案涉及的相关利害关系人如有意见,请于公示期内(2026年3月2日至2026年3月10日)将有关意见(署真实姓名、身份证号码、联系地址和通讯方式)反映至防城港市自然资源局建设工程规划科(联系电话:0770-2820075,邮寄地址:防城港市港口区云南路30号天马大厦防城港市自然资源局,邮编:538001)。
五、本案图示

区位图

总平面图

鸟瞰图

综合楼效果图
防城港市自然资源局
2026年3月2日
文件下载:
关联文件: