我要收藏
公共资源调用站点
文章分享
根据《中华人民共和国城乡规划法》的有关规定,现广西电网有限责任公司防城港供电局“企沙营业所综合楼”项目调整后总平面规划设计方案及建筑立面设计方案予以公示。
一、项目地址:港口区企沙镇北港路北侧
二、项目概况:
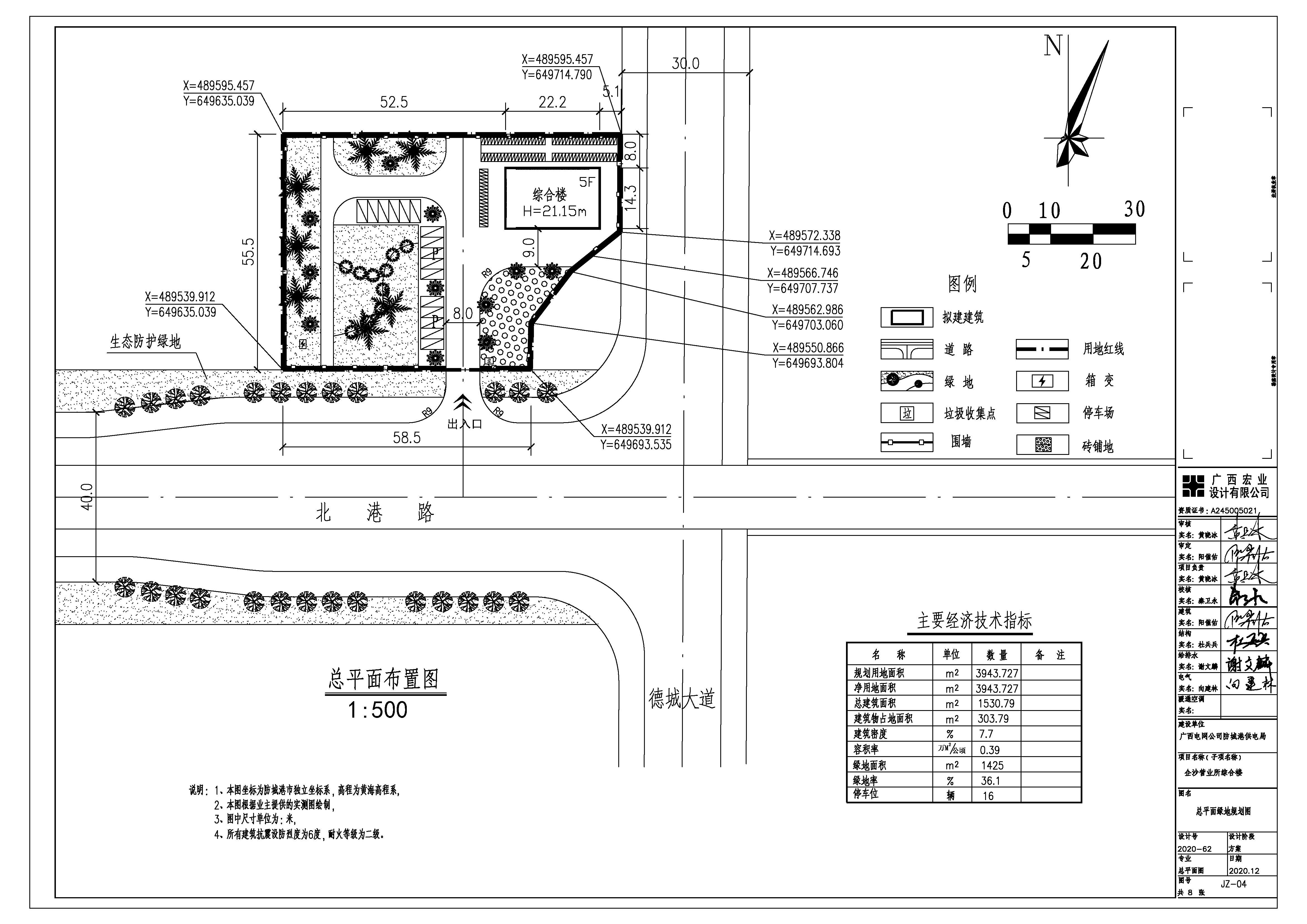
(一)批准规划设计条件(地字第450602201800436号):总(净)用地面积3943.727㎡,用地性质为商务用地,建设规模≤10253.69㎡,容积率≤2.60,建筑密度≤30%,绿地率≥30%,建筑限高 ≤50米。
(二)总平面规划设计方案:总(净)用地面积3943.727㎡,总(计)建筑面积1535.0㎡,容积率0.4,建筑密度为8.0%,绿地率38.8%,机动车停车位20个。
(三)主要调整内容:
1.出入口位置由项目地块东侧调整到南侧。
2.综合楼建筑外立面颜色由浅蓝色调整为黄色。
3.其余建设内容基本无调整。
三、公告地点
(一)《防城港日报》《南国早报》《广西日报》等任何一家覆盖防城港新闻的综合类报纸媒体。
(二)防城港市自然资源局网站: http://fcg.dnr.gxzf.gov.cn/。
(三)项目所在地现场:港口区企沙镇北港路北侧
项目审批涉及到的相关利害关系人如有意见,请将书面意见(署真实姓名、身份证号码、联系地址和通讯方式)于公示期(公示期为7个工作日,具体公示时间以登报公示之日起开始计算,项目业主在拿到此函后须尽快进行现场及登报公示)内送达防城港市自然资源局工程规划管理科(联系电话:0770-2820082,防城港市港口区云南路30号天马大厦防城港市自然资源局,邮编:538001)。
本案图示![]()
区位示意图

原审批总平面图

调整后总平面图

原审批建筑方案

调整后建筑方案
防城港市自然资源局
2020年12月10日
文件下载:
关联文件: