根据《中华人民共和国城乡规划法》的有关规定,现对广西防城港御澜匠心科技有限公司“御澜匠心工业装备研制”项目总平面规划设计方案及建筑立面设计方案予以批前公示。
一、项目地址:港口区企沙工业园区
二、项目概况
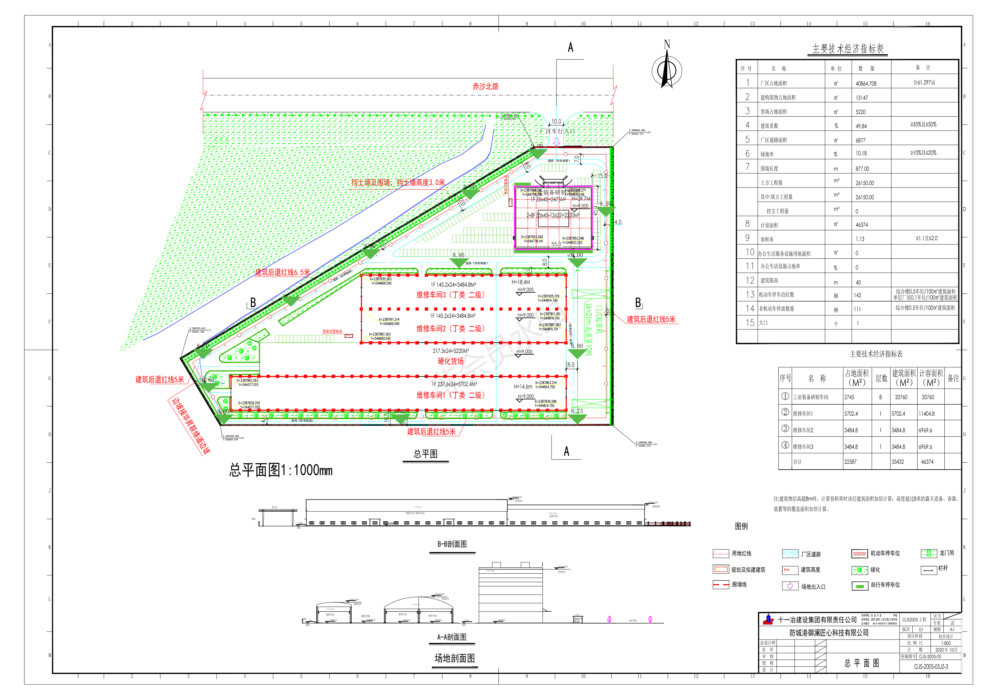
(一)批准规划设计条件:总用地面积40864.708㎡,用地性质为二类工业用地,建设规模:≥44951.179㎡且≤81729.416㎡,容积率:≥1.1且≤2.0,建筑密度:≥35%且≤50%,绿地率:≥10%且≤20%,建筑限高 :≤40米,配备车位:按相关规范设置。
(二)建设内容:项目总用地面积为40864.708㎡,净用地面积为40864.708㎡,总建筑面积为33432㎡,总计容建筑面积46374㎡,容积率为1.13,建筑密度为49.84%,绿地率为10.18%。
(三)建设方案:建筑立面设计方案一。
三、公告地点
(一)《防城港日报》《南国早报》《广西日报》等任何一家覆盖防城港新闻的综合类报纸媒体。
(二)防城港市自然资源局网站: http://fcg.dnr.gxzf.gov.cn。
(三)项目所在地现场:港口区企沙工业园区。
项目审批涉及的相关利害关系人如有意见,请将书面意见(署真实姓名、身份证号码、联系地址和通讯方式)于公示期(公示期为7日,具体公示时间以登报公示之日起开始计算,项目业主在拿到此函后须尽快进行现场及登报公示)内送达防城港市自然资源局工程规划管理科(联系电话:0770-2820082,防城港市港口区云南路30号天马大厦防城港市自然资源局,邮编:538001)。
本案图示

区位图

总平面

鸟瞰图

透视图
防城港市自然资源局
2021年3月3日
文件下载:
关联文件: